Descripción general

  • Chalet adosado
  • Tipo de propiedad
  • 5
  • Habitaciones
  • 5
  • Baños
  • 1
  • Garage
  • 327
  • Metros

Tour virtual de 360​​°

Descripción

¡Exclusividad, naturaleza y amplitud a solo quince minutos de Bilbao!

En TS Tailor Suit Real Estate te presentamos este magnífico chalet adosado situado en la prestigiosa urbanización de Laukariz, en Mungia, junto al reconocido Club de Campo Laukariz. Un enclave residencial consolidado, tranquilo y rodeado de zonas verdes donde la privacidad y la calidad de vida son protagonistas, sin renunciar a la cercanía con Bilbao.

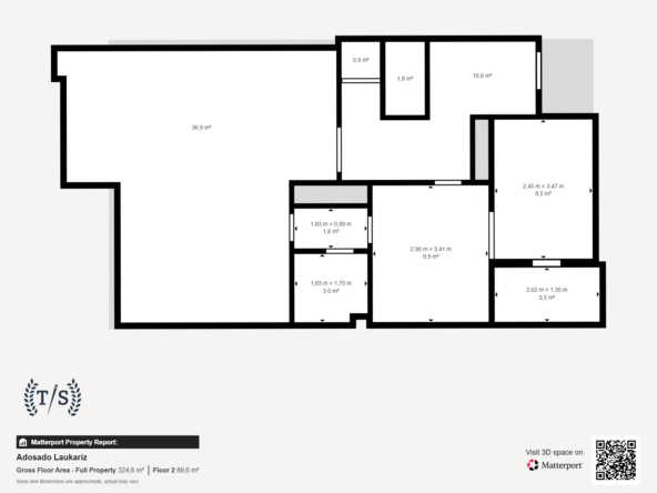
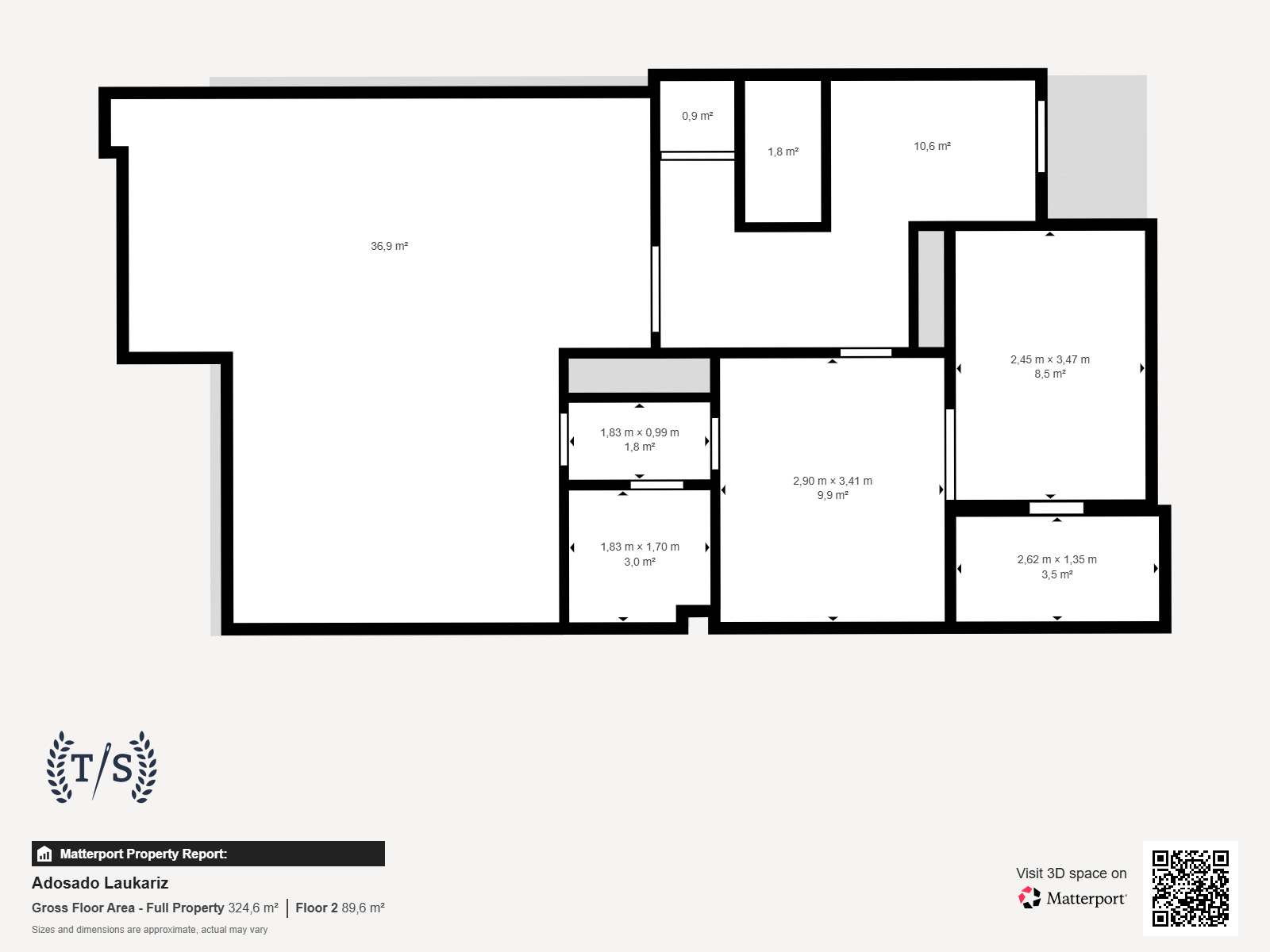
Con 326 m² construidos según catastro, la vivienda se distribuye en cuatro plantas concebidas para ofrecer amplitud, confort y versatilidad en cada etapa familiar. Su construcción destaca por la solidez y la calidad de materiales: fachada de ladrillo caravista, estructura de hormigón, cubierta inclinada de teja pizarra y carpintería exterior de PVC con doble acristalamiento, garantizando un excelente aislamiento térmico y acústico. La orientación sur-este aporta luminosidad natural durante todo el día, reforzada por la calefacción individual de gas natural que asegura bienestar en cualquier estación.

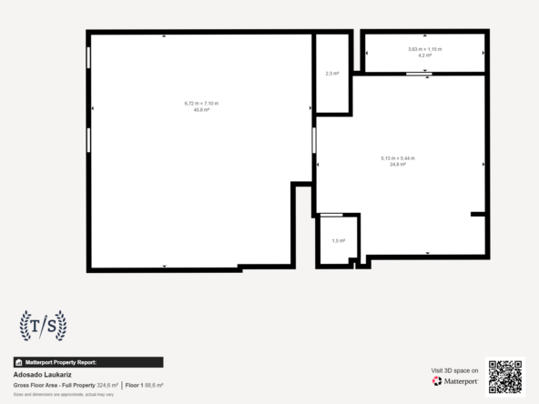
Desde la calle accedemos al amplio garaje privado con capacidad para varios vehículos, zona de almacenaje y trastero, además de un práctico aseo auxiliar. La planta principal se abre con un vestíbulo acogedor que conduce a una cocina independiente con tendedero y a un elegante salón-comedor de casi 40 m², espacio central de la vivienda que conecta directamente con una terraza de más de 30 m² y el jardín trasero. Un entorno perfecto para comidas al aire libre, reuniones familiares o momentos de descanso en un ambiente íntimo y verde. En esta misma planta se ubica un aseo de cortesía.

La primera planta concentra la zona de descanso con cuatro dormitorios exteriores, todos con armarios empotrados, uno de ellos actualmente habilitado como despacho. En el distribuidor encontramos un amplio vestidor adicional que aporta comodidad y capacidad de almacenaje. El dormitorio principal disfruta de vestidor propio, baño en suite y terraza privada, creando un espacio personal diferenciado, mientras que un segundo baño completo con ventilación natural da servicio al resto de estancias.

La planta bajo cubierta añade un plus de versatilidad con una gran sala polivalente, quinto dormitorio, gabanero y baño completo, ideal como zona de invitados, gimnasio, sala de juegos o área de teletrabajo.

La vivienda cuenta además con jardín delantero y trasero, generando dos ambientes exteriores diferenciados que amplían la sensación de espacio y permiten disfrutar del entorno natural que caracteriza a Laukariz. Vivir aquí significa combinar tranquilidad, seguridad y paisaje abierto con la proximidad a servicios, colegio y transporte. Además, la cercanía al Club de Campo Laukariz ofrece la posibilidad de disfrutar de campo de golf, piscina y pistas deportivas sin alejarse de casa.

Los gastos de comunidad general ascienden a 43,36 € mensuales y la cuota comunitaria es de 100 € trimestrales, asegurando el mantenimiento óptimo de la urbanización y sus zonas comunes.

Esta propiedad representa el equilibrio entre elegancia, amplitud y entorno natural privilegiado. Un hogar pensado para quienes buscan espacio, privacidad y calidad constructiva en una de las zonas residenciales más valoradas del entorno de Bilbao.

Detalles

Actualizado en marzo 31, 2026 a 6:32 pm
  • Precio: €680,000
  • Tamaño de propiedad: 327
  • Habitaciones: 5
  • Baños: 5
  • Garage: 1
  • Tipo de propiedad: Chalet adosado

Dirección

  • Ciudad Mungia
  • Estado/Municipio Bizkaia
  • País España

Simulador de cuotas

Nuestra calculadora ofrece una simulación del cuadro de amortización de su hipoteca con los intereses.

Solicitar visita

Su información

0 Comentario

Ordenar por:
Escribe una reseña

Escribe una reseña

Información de contacto

Ver enlace de publicaciones
Tailor Suit Real Estate
  • Tailor Suit Real Estate

Pregunte por el inmueble

Comparar listados

Comparar
Tailor Suit Real Estate
  • Tailor Suit Real Estate